Skip to main content

New announcement. Learn more

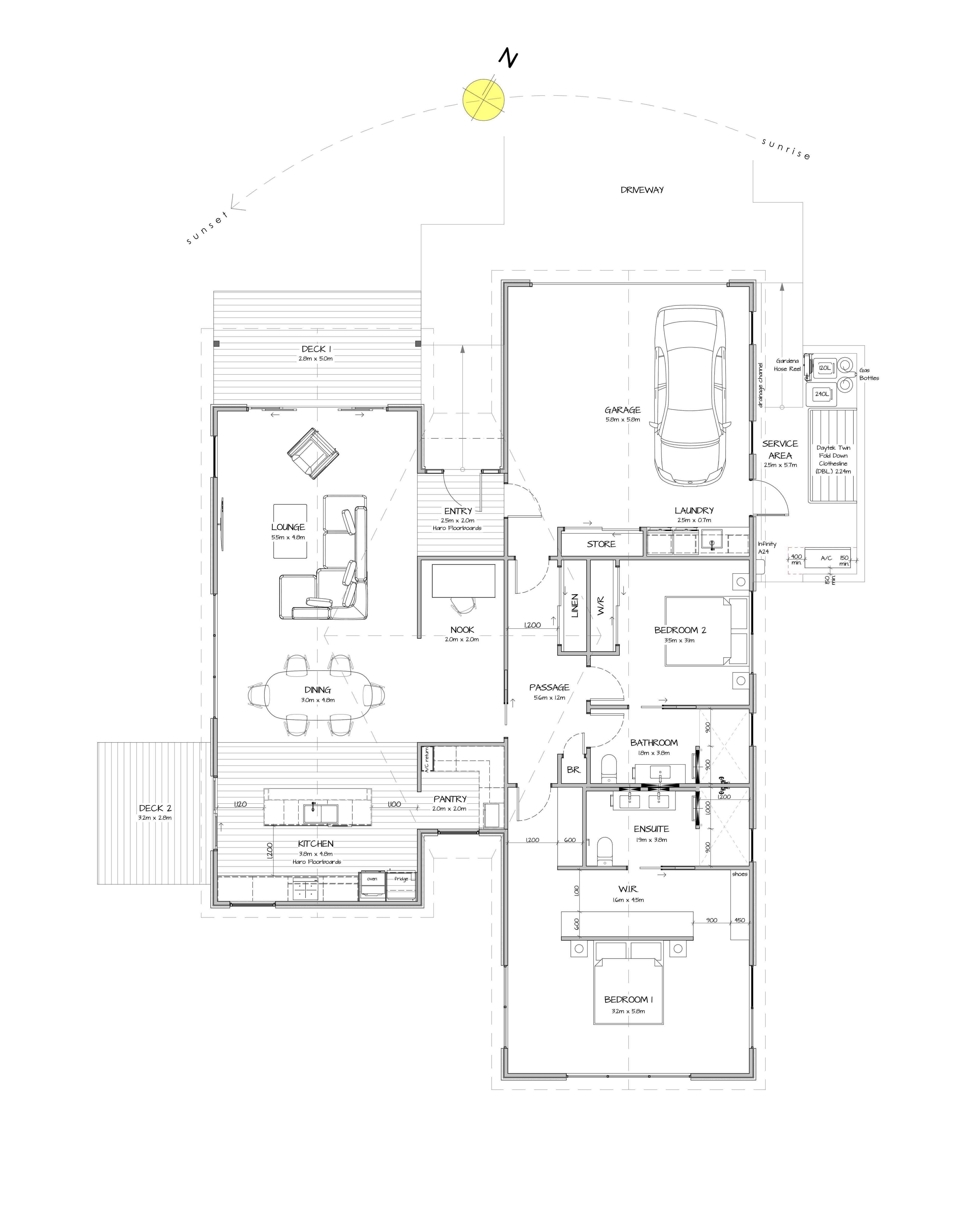
Villa 16

Refined living with sun and style

Discover Villa 16, a thoughtfully designed two-bedroom home by The Grange Architect, offering a warm and inviting retreat with clean, contemporary lines and a high-quality finish throughout.

The master bedroom is beautifully positioned to capture both morning and afternoon sun, with tranquil views towards Saddle Hill. It features a walk-through wardrobe and a fully tiled ensuite, creating a private and comfortable space to unwind. The second bedroom is equally well considered, with convenient access to a shared Jack and Jill bathroom—ideal for guests or visiting family.

At the heart of the home, the stunning kitchen is complemented by a well-appointed butler’s pantry, making everyday living and entertaining a pleasure. An additional office nook provides the perfect space for hobbies, reading, or staying connected.

Finished to an exceptional standard, the villa includes brand new appliances, Haro flooring, New Zealand wool carpet, and elegant window treatments by McKenzie & Willis.

A double garage with integrated laundry adds further practicality, while the overall design supports easy, independent living within The Grange Lifecare community.

This is a home where thoughtful design and quality craftsmanship come together to create a truly welcoming place to call your own.

Discover the warmth and thoughtful design of Villa 16 for yourself. To arrange a private viewing or request further information, please contact Mandy on 03 484 7748 or email us. We would be delighted to show you through.