Skip to main content

New announcement. Learn more

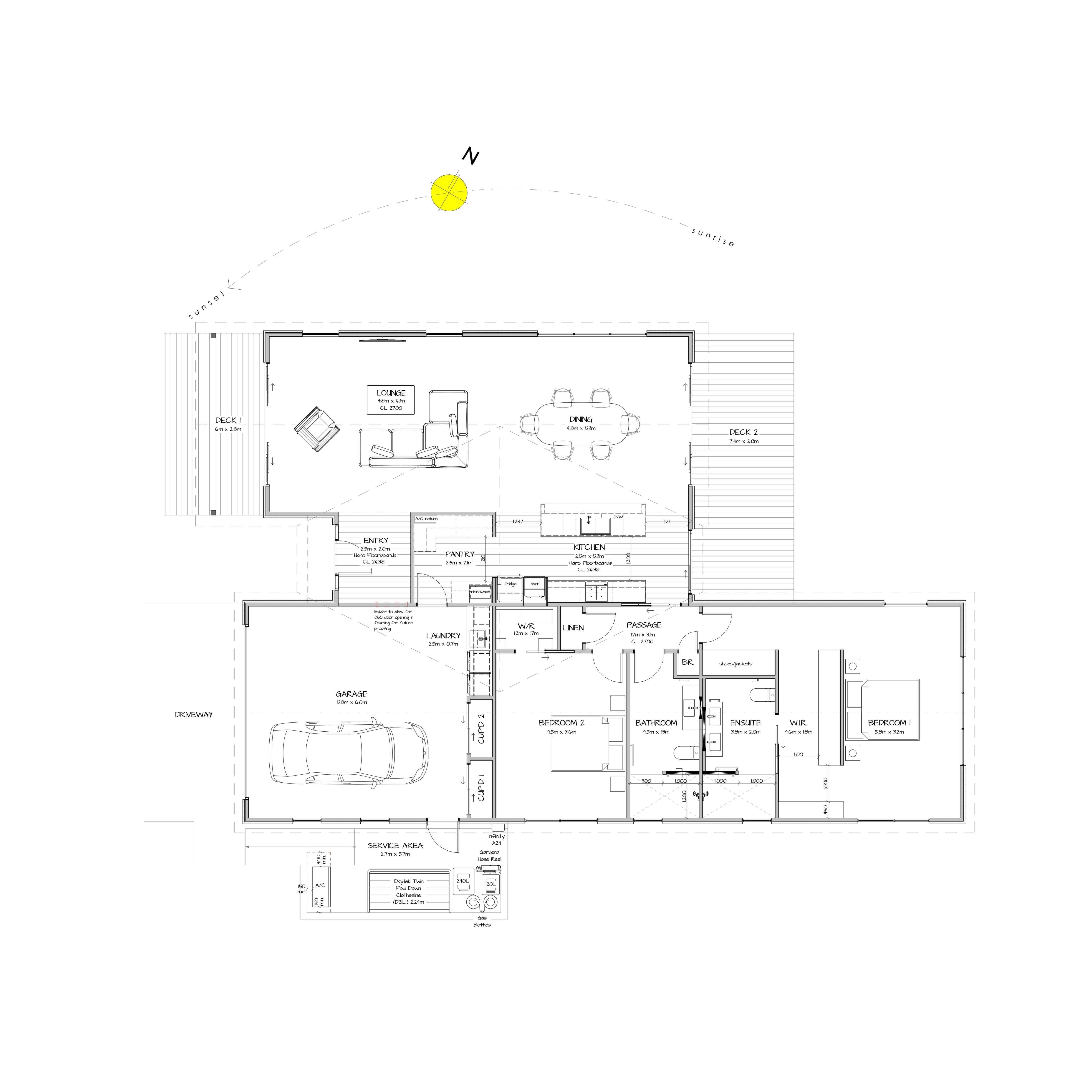
Villa 18

Effortless living, morning to evening sun

Villa 18 offers a beautifully balanced two-bedroom home designed for relaxed, easy living with a seamless connection to the outdoors. Positioned to make the most of both sunrise and sunset, this villa invites you to enjoy every part of the day from the comfort of your own space.

Large ranch sliders open out to an expansive deck, creating a natural extension of the living area—perfect for soaking up the morning light with a coffee or unwinding in the evening as the sun sets.

Inside, the home is thoughtfully laid out, with a well-appointed kitchen featuring a butler’s pantry for added convenience and storage. The master bedroom includes a walk-in wardrobe, offering both comfort and practicality, while the second bedroom provides flexibility for guests or hobbies.

A double garage with integrated laundry ensures everyday ease, while the overall design supports independent living within the welcoming community of The Grange Lifecare.

Villa 18 is a home that brings together light, space, and simplicity—designed to be enjoyed at your own pace.

Take in the light and space of Villa 18 for yourself. To arrange a private viewing or request further information, please contact Mandy on 03 484 7748 or email us. We would be delighted to show you through.